Karlín

Pronájem bytu 3+kk, balkón, 2x GS - Rohanské nábřeží, Praha 8

Pronájem
3+kk
Dispozice
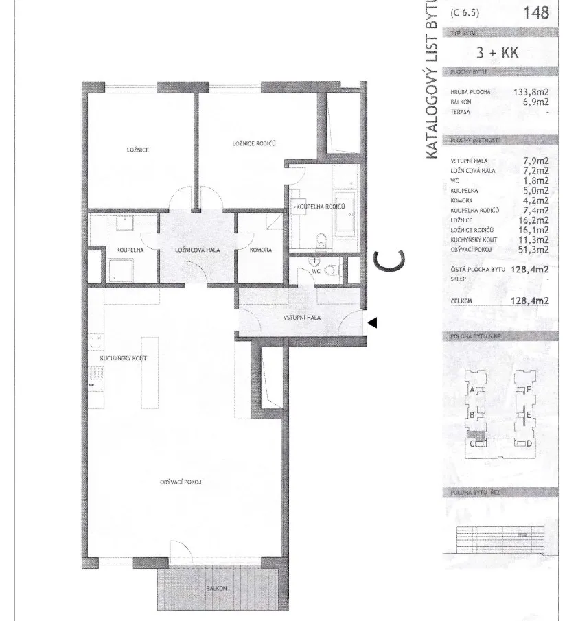
135,3
Velikost
55.000,- plus poplatky 12.283,-
Cena
cihlová
Typ stavby

Základní informace

Popis

Pro zájemce o komfortní bydlení ve velmi oblíbené části Prahy 8 – Karlín, ulice Rohanské nábřeží, s radostí nabízím pronájem prostorného a částečně zařízeného bytu 3+kk (128,4m2 + balkon 6,9m2) i dvou garážového stání. Byt je součástí populárního rezidenčního projektu RIVER DIAMOND, který představuje spojení domova v blízkosti centra města a přesto v naprostém klidu fungujícího komplexu. Byt samotný je situován v pátém patře sedmipatrové budovy a je orientovaný na západní i východní stranu, z části s výhledem do japonské zahrady. Hlavní část bytu tvoří prostorný světlý obývací pokoj propojený s prostorem pro jídelní stůl a kuchyňskou linku (celkem 51,3m2). Nejen v letních měsících obývací pokoj příjemně navazuje balkón(6,9mě). Na protější straně bytu jsou dva pokoje. Prvním je ložnice(16,1m2) se samostatnou koupelnou. Druhý pokoj je aktuálně využíván jako šatna (16,2m2). V centrální části bytu je pak další koupelna a praktická komora s přípojkou pro pračku. V celém bytě je množství úložných prostor. Byt se nabízí částečně zařízený – kompletně vybavená kuchyňská linka se spotřebiči, americká chladnička, prostorná vinotéka, TV a v ložnici postel s novou matrací. V suterénu domu jsou k dispozici dvě garážové stání. Byt je vhodný pro klienty, kteří ocení komfortní výměru bytu, příjemné a bezpečné prostředí areálu a klid okolí. Lokalita nabízí bohatou občanskou vybavenost včetně škol, sportovišť a zdravotnických zařízení. Obyvatelům dává rozmanité možnosti pro trávení volného času, jako je například nedaleké golfové odpaliště či ZOO. Milovníci sportu mohou využívat bohaté sítě cyklostezek. Snadné spojení do centra zajišťuje blízká stanice metra a zastávky tramvají. Metro trasy B, zastávka Křižíkova cca 5 minut chůze. Obchody, vynikající restaurace a kavárny v okolí. Vratná kauce ve výši tří nájmů. V případě zájmu o další informace či prohlídku mě, prosím, kontaktujte. Těším se na viděnou.

Lokalita

  • Karlín
  • pěší dostupnost metra trasy B
  • dostupnost centra
  • kompletní občanská vybavenost
  • oblíbený projekt RIVER DIAMOND

Mapa

Vybavení

  • kompletně vybavená kuchyňská linka se spotřebiči
  • americká chladnička
  • prostorná vinotéka
  • TV
  • v ložnici postel
  • dvě koupelny
  • dvě garážová stání