Žižkov

Prodej bytu 1+1, Praha 3

Prodej
1+1
Dispozice
53
Velikost
6.800.000,-
Cena
cihlová
Typ stavby

Základní informace

Popis

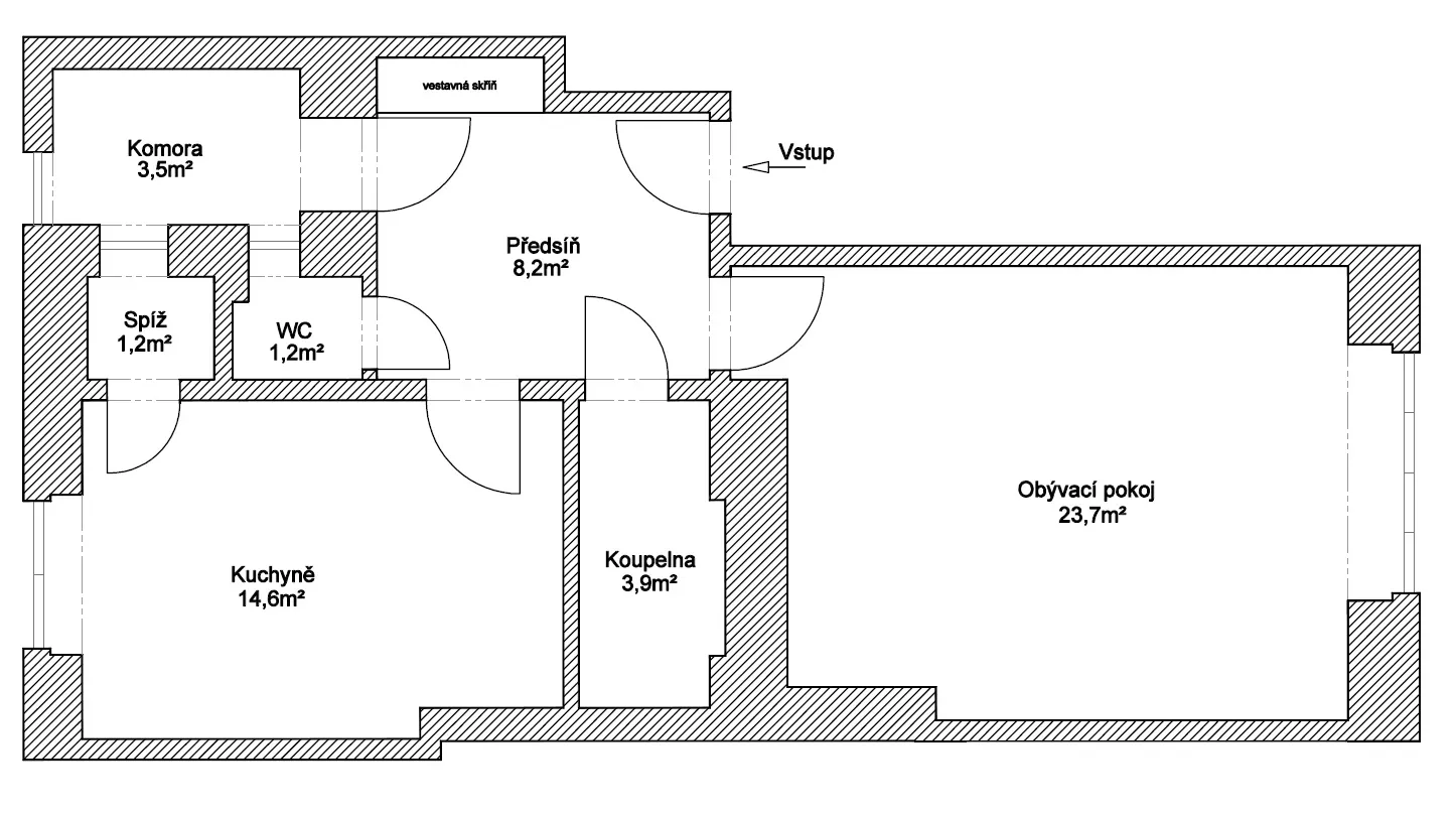
Pro zájemce o příjemné bydlení ve velmi dobře občansky vybavené části Prahy 3 – Žižkov, ulice Hájkova, nabízím exkluzivně prodej dostatečně prostorného bytu 1+1 (53m2) se sklepní kójí a možností pronájmu parkovacího stání nedaleko. Byt je situovaný v původní cihlové zástavbě klidné části Žižkova a samotný dům o pěti patrech prošel rekonstrukcí společných prostor, výměnou oken a sanací sklepů. Samotná bytová jednotka nacházející se v prvním patře (2.NP), je před rekonstrukcí, avšak v udržovaném funkčním stavu. V rámci rekonstrukce lze změnit dispozici bytu na 2+kk. Hlavní část bytu tvoří světlý obývací pokoj (23,7m2, orientace na východ) dostatečně prostorný pro případnou kuchyňskou linku (nyní prostor určený pro spaní). Na opačné straně bytu se nyní nachází oddělená kuchyň (14,6m2, orientace západ) s výhledem do klidného vnitrobloku. V centrální části bytu je vstupní hala, umožňující vstup do koupelny, na samostatnou toaletu a do praktické komory. V obytných pokojích jsou na podlaze parkety, ve vstupní hale (8,2m2) nová dlažba. K vytápění bytu se používají vafky, ohřev vody karmou. Budoucí majitel jistě ocení kompletní občanskou vybavenost a výbornou dopravní obslužnost. V okolí jsou velmi dobré restaurace a kavárny, parky, školy a školky. To vše v docházkové vzdálenosti. V případě zájmu o další informace či prohlídku mě, prosím, kontaktujte. Těším se na setkání.

Lokalita

  • plně občansky vybavená lokalita
  • výborná dopravní obslužnost

Mapa