Praha 5 - Stodůlky

Pronájem bytu 1 + kk , Hasilova, Praha 5

Pronájem
1 + kk
Dispozice
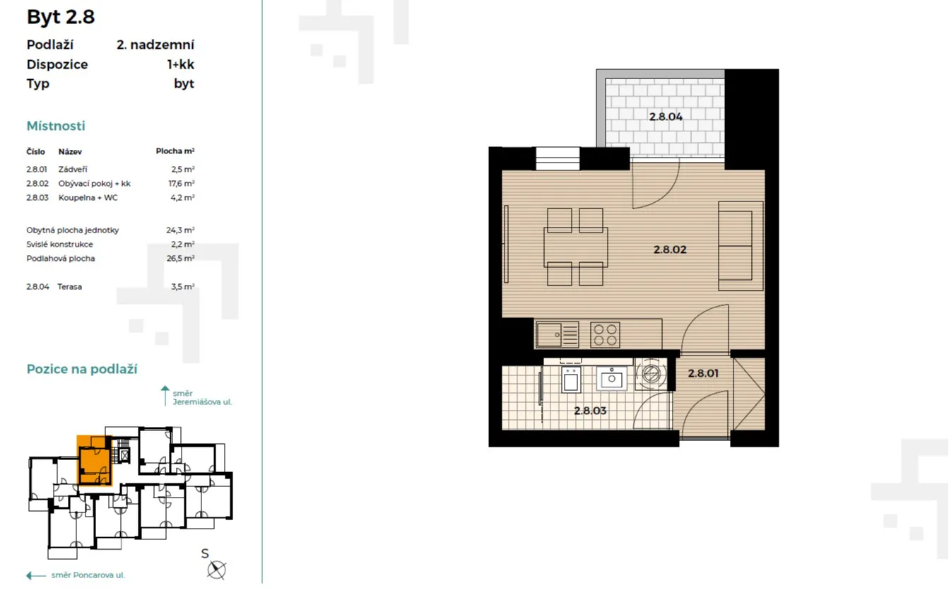
26,7 + 3,5 m² terasa
Velikost
17.500,- + 3.000,- poplatky
Cena
Novostavba
Typ stavby

Základní informace

Popis

Nabízím kombinaci bydlení v zeleni a centra města na dosah ruky, pro zájemce, jenž ocení klid lokality. Byt se nachází v části Prahy 5 – Stodůlky a má dispozici 1+kk (26,7m2 + 3,5m2 terasa). Byt je součástí developerského projektu společnosti ED Group a.s., která již opakovaně ve svých stavbách prokázala cit pro řešení a kvalitu výsledné práce. 

Situován je na severovýchodní stranu, 1. patro (2.NP) s výtahem. Hlavní obytný prostor je vybavený kuchyňskou linkou se spotřebiči (el. varná deska a elektrická trouba, myčka, chladnička a mikrovlnná trouba). Dále úložným prostorem v podobě skříní, a menším dvojlůžkem. V předsíní najdeme další, tentokrát vestavěné skříně a z předsíně můžeme vstoupit do koupelny osazené sprchovým koutem, umyvadlem a toaletou. Je zde i pračka, která je stejně jako ostatní vybavení součástí nabídky. 

Obytný prostor nabízí vstup na terasu 3,5m2 s možností posezení a výhledu do zeleně. Zcela odpovídající je veškerý zbytek občanské vybavenosti včetně možnosti nákupů. K dispozici ihned. Vratná kauce ve výši jednoho nájmu. V případě zájmu o další informace či prohlídku mě, prosím, kontaktujte. 

Těším se na setkání.

Lokalita

Bydlící jistě ocení pěší dostupnost stanice metra trasy B – Stodůlky.

Mapa

Vybavení

  • Moderní kuchyňská linka se spotřebiči
  • Úložné prostory, vestavěné skříně
  • Dvojlůžko
  • Pračka
  • Terasa