Uhelná, Zubzany

Prodej rodinného domu, Uhelná, Zbuzany

Prodej
3+kk, 2+1
Dispozice
477 m2
Pozemek
203,4 m2
Velikost
10.000.000,-
Cena
zděná
Typ stavby

Základní informace

Popis

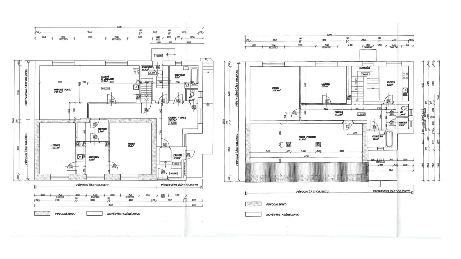
Pro zájemce, kteří by rádi realizovali svůj sen o bydlení v prostorném rodinném domě se zahradou a výbornou dostupností Prahy, nabízím exkluzivně RD se záměrem dvou bytových jednotek a samostatnou garáží v ulici Uhelná, Zbuzany. Stavba prošla zásadní úpravou před rokem 2011, kdy k původnímu domku přibyla zděná přístavba s plochou střechou. Záměrem zhotovitele bylo vybudovat dvě samostatné jednotky s dispozicí 3kk (130m2) v 1.NP, a dispozicí 2+1 (73,4m2) v 2.NP, kde další prostor pro rozšíření obytné plochy skýtá nevyužitá půda (53,3m2). Druhé nadzemní podlaží však nikdy nebylo dokončeno a zůstalo ve fázi hrubé stavby. Dům stojí na pozemku o výměře 477m2. Stavba je podsklepená a v tomto prostoru nabízí dalších 40m2. Na samotnou zahradu připadá 276m2 a v její zadní části je umístněná garáž. Nemovitost je napojena na veškeré inženýrské sítě včetně plynu. Okolí domu je poklidné a obec Zbuzany disponuje vlakovým spojení s hlavním městem Praha – Smíchov 17 minut. Doporučuji těm klientům, kteří hledají bydlení v rodinném domě s výbornou dostupností Prahy a rádi by realizovali své představy při rekonstrukci. V případě zájmu o další informace či prohlídku mě, prosím, kontaktujte. 

Těším se na setkání.

Mapa